Einmalige Denkmal-Villa in Mannheims Bestlage – großes Entwicklungspotenzial & attraktive Denkmal-AfA
In einer der begehrtesten Premiumlagen Mannheims bietet diese beeindruckende Villa aus den 1930er Jahren eine außergewöhnliche Gelegenheit für Käufer, die ein historisches Objekt mit einzigartigem Charakter und hervorragenden Entwicklungsperspektiven suchen. Das freistehende Einfamilienhaus fügt sich harmonisch in das elegante Villenviertel ein und verfügt über eine Wohnfläche von rund 341 m² sowie ein ideal proportioniertes Grundstück von 564 m².
Bereits das äußere Erscheinungsbild vermittelt zeitlose Eleganz: Ein gepflegter Ziergarten, eine charmante freistehende Garage und ein zusätzlicher Stellplatz geben dem Anwesen seine repräsentative Note. Der diskrete Zugang über die nördliche Seitenfassade sorgt für Privatsphäre und verstärkt den exklusiven Charakter des Hauses.
Im Inneren eröffnet sich ein historisches Architekturjuwel, das sich derzeit in sanierungsbedürftigem Zustand befindet – ein echter Vorteil für Käufer, die ein Objekt individuell gestalten möchten. Die großzügigen Wohnräume im Erdgeschoss bieten mit ihren klassischen Schiebetüren, den hohen Decken und der natürlichen Helligkeit ein perfektes Fundament für modernes Wohnen mit historischem Flair. Vom Essbereich gelangt man direkt auf die Terrasse und in den idyllischen Garten – ein Platz, der nach der Modernisierung zu einer traumhaften Ruheoase werden kann.
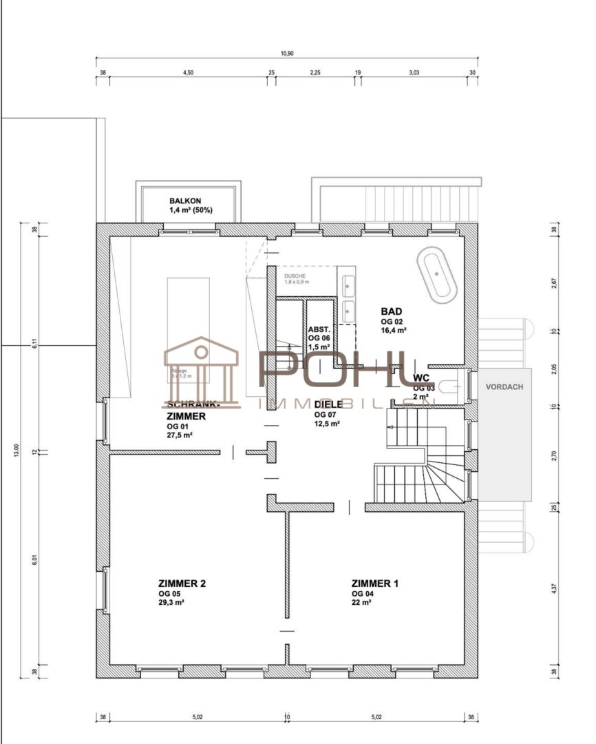
Das Obergeschoss überzeugt mit drei großzügigen Zimmern, die sich flexibel als Schlaf-, Arbeits- oder Familienbereiche nutzen lassen. Ein Zimmer verfügt über einen Balkon mit einem besonders reizvollen Blick auf die Christuskirche – ein einzigartiges Merkmal dieser Lage. Bad, separates WC und Abstellmöglichkeiten komplettieren die Etage.
Im Untergeschoss stehen ein ausgebauter Raum sowie verschiedene Funktionsräume zur Verfügung, darunter ein Hauswirtschaftsraum mit direktem Gartenzugang und ein historischer Luftschutzbunker – ein spannendes Zeitzeugnis und zusätzlich nutzbare Fläche.
Großer Pluspunkt: Denkmal-AfA – attraktive steuerliche Vorteile für Käufer
Da es sich um ein denkmalgeschütztes Gebäude handelt, können Modernisierungs- und Sanierungsmaßnahmen – entsprechend der gesetzlichen Vorgaben – steuerlich geltend gemacht werden. Für Kapitalanleger ist dies besonders attraktiv, da sich die Investitionskosten erheblich reduzieren können. Auch Selbstnutzer profitieren deutlich von der Denkmal-AfA und haben die Chance, ihr Traumhaus nach eigenen Vorstellungen zu gestalten und gleichzeitig steuerliche Vorteile zu nutzen.
Fazit
Diese Villa ist mehr als ein Haus – sie ist ein Projekt mit Seltenheitswert. Ihre Kombination aus hervorragender Lage, großem Raumangebot, charmanter Architektur, individueller Gestaltungsfreiheit und den erheblichen steuerlichen Vorteilen der Denkmal-AfA macht sie zu einer einmaligen Gelegenheit im Mannheimer Premiumsegment.
Mannheimer Bestlage: Exklusive Villa unter Denkmalschutz – eine seltene Investmentchance (AFA)
Grunddaten
Flächenaufstellung
Raumangebot und Ausstattung
Kaufpreis
Lage
Entdecken Sie Ihr neues Zuhause in der charmanten Stadt Mannheim! Diese Immobilie befindet sich in einer der begehrtesten Wohnlagen der Stadt, die sowohl Ruhe als auch urbanes Flair vereint.
- Zentrale Lage: Nur wenige Gehminuten vom Mannheimer Hauptbahnhof entfernt, genießen Sie eine hervorragende Anbindung an den öffentlichen Nahverkehr.
- Nahe Einkaufsmöglichkeiten: Supermärkte, Boutiquen und Restaurants sind fußläufig erreichbar, sodass Sie Ihren Alltag bequem gestalten können.
- Grüne Oasen: Die Nähe zu Parks und Erholungsgebieten wie dem Luisenpark lädt zu entspannenden Spaziergängen und Outdoor-Aktivitäten ein.
- Bildungseinrichtungen: Schulen und Kindergärten sind in der Umgebung vorhanden, ideal für Familien.
- Kultur und Freizeit: Erleben Sie die Vielfalt Mannheims mit Theatern, Museen und Sporteinrichtungen direkt vor Ihrer Haustür.
Nutzen Sie diese einmalige Gelegenheit und sichern Sie sich Ihr Stück Mannheimer Lebensqualität!
EXPOSÉ anfordern
Gerne übersenden wir Ihnen unser ausführliches Exposé mit einer detaillierten Beschreibung des Objektes samt Planunterlagen per E-Mail und auf Wunsch zusätzlich per Post.
